2022.09.08
歯科リフォーム
開業30数年経過し、時代に即したりフォームを考える。
開業当初は患者も多く、効率を考えたレイアウトを主体とし、診療ユニットを4台配置した。患者様に与える第一印象の受付、待合室のインテリアを非常に大事とし、落ち着きのある高級感を演出した。受付カウンターは大理石を使用し、腰は黒のレザー布団張り。待合室床はチーク材の斜め張り。受付広報壁はミラーガラス面取りカット張り。落着き照明の中、待合室にアクア水槽を設置して高級感を演出した。非常に好評である。
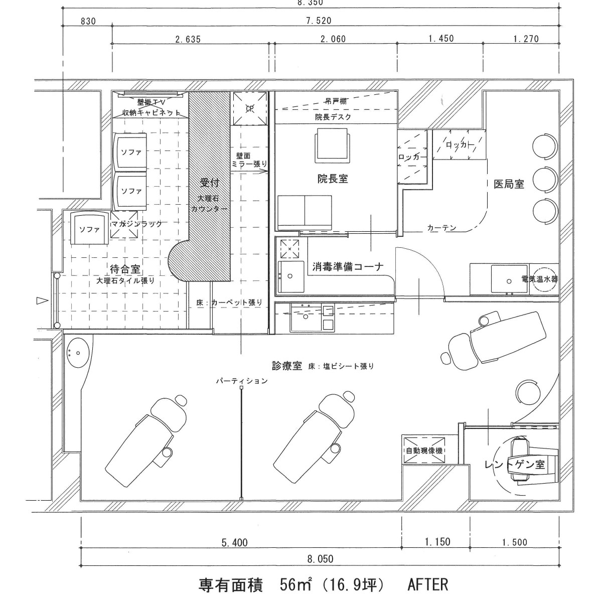
今回のリフォーム。質の高い医療を進める為、診療室のチェアユニットを3台に減らし、個室に近いレイアウトとした。待合室のインテリアは高級感絵を保ちつつ、待合室床は大理石タイル張り、カウンター腰は黒から白のレザー布団張り足元照明を配置。落着きの明るさを演出した。
開業当初は患者も多く、効率を考えたレイアウトを主体とし、診療ユニットを4台配置した。患者様に与える第一印象の受付、待合室のインテリアを非常に大事とし、落ち着きのある高級感を演出した。受付カウンターは大理石を使用し、腰は黒のレザー布団張り。待合室床はチーク材の斜め張り。受付広報壁はミラーガラス面取りカット張り。落着き照明の中、待合室にアクア水槽を設置して高級感を演出した。非常に好評である。
今回のリフォーム。質の高い医療を進める為、診療室のチェアユニットを3台に減らし、個室に近いレイアウトとした。待合室のインテリアは高級感絵を保ちつつ、待合室床は大理石タイル張り、カウンター腰は黒から白のレザー布団張り足元照明を配置。落着きの明るさを演出した。


