2022.09.08
マンションリノベーション 78㎡ 自宅兼鍼灸院へ
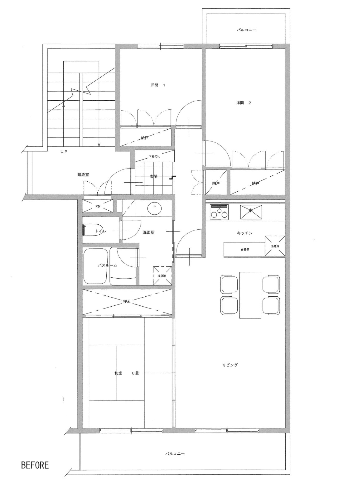
自宅で鍼灸院を営みたい。
そんな願いを叶えた住まい。
洋間1・2を撤去し、施術室として改装。そのまま外から靴を脱がずに入れるフラット仕上げにしました。
自宅玄関はアール部分で段差を設け、仕事、生活部分を明確に分離し気持ちの切り替えを促す役目を果たします。
リビングにつながる和室をやめて独立した洋間寝室とし、リビング、ダイニングも一体性を持たせ、広さを感じさせるよう、低いキャビネット、床はフローリング張り仕上げとしました。
そんな願いを叶えた住まい。
洋間1・2を撤去し、施術室として改装。そのまま外から靴を脱がずに入れるフラット仕上げにしました。
自宅玄関はアール部分で段差を設け、仕事、生活部分を明確に分離し気持ちの切り替えを促す役目を果たします。
リビングにつながる和室をやめて独立した洋間寝室とし、リビング、ダイニングも一体性を持たせ、広さを感じさせるよう、低いキャビネット、床はフローリング張り仕上げとしました。


