2022.09.08
歯科リノベーション
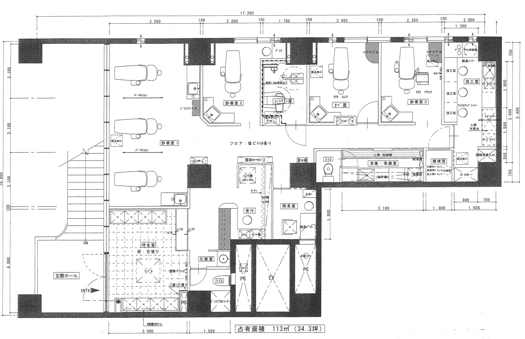
開業30数年を迎え、時代に即した、リノベーションを考える。
内装、設備を全て解体し、医療器材も新しく入れ替える。基本的なレイアウトは残しつつ、収納を整理した。待合室の床上げを撤去して、石張りとし、土足仕様とした。
工事期間、約40日。全体的にすっきりとして好評である。
内装、設備を全て解体し、医療器材も新しく入れ替える。基本的なレイアウトは残しつつ、収納を整理した。待合室の床上げを撤去して、石張りとし、土足仕様とした。
工事期間、約40日。全体的にすっきりとして好評である。
|
|
|
BEFORE
|
AFTER
|
|
|
|
BEFORE
|
AFTER
|
