2022.09.08
マンションリノベーション 78㎡
サイクリングが趣味のご夫妻。
料理が趣味の奥様。
バスタイムも楽しみたい。
そんな希望を叶えた住まい。
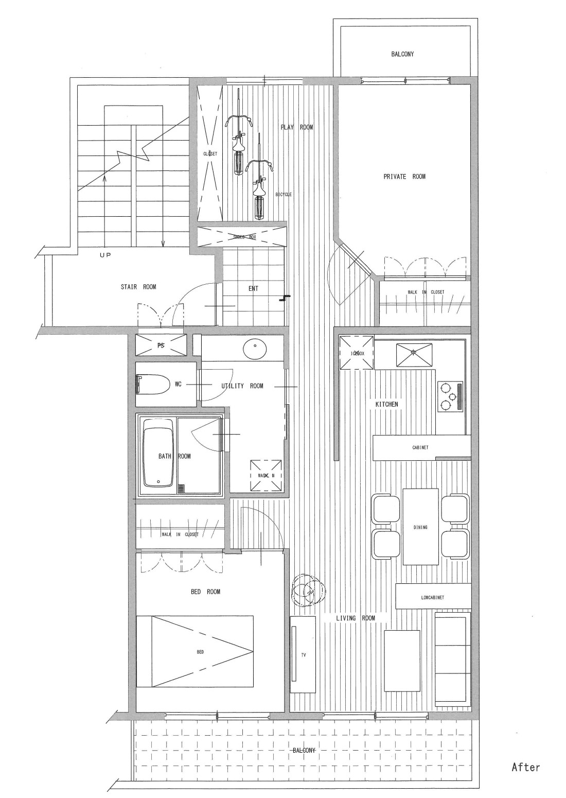
下足入れを移動し、一部壁を後退させることで、玄関周りが広くなり、空間に余裕が生まれ、自転車も楽に出し入れが可能。いつまでも自転車を眺め、触れていたい。そんな願いで自転車専用室を設けた。
壁一面には全面収納棚を設け、関連部品を納めることが出来る。
キッチンも広げてL型に配置し、使い勝手を高めた。又、バスタイムも身体をリラックスさせる重要な時間と考え、ホテル感覚で楽しんでもらえる大きく、ゆったりとしたバスユニットを選んだ。
料理が趣味の奥様。
バスタイムも楽しみたい。
そんな希望を叶えた住まい。
下足入れを移動し、一部壁を後退させることで、玄関周りが広くなり、空間に余裕が生まれ、自転車も楽に出し入れが可能。いつまでも自転車を眺め、触れていたい。そんな願いで自転車専用室を設けた。
壁一面には全面収納棚を設け、関連部品を納めることが出来る。
キッチンも広げてL型に配置し、使い勝手を高めた。又、バスタイムも身体をリラックスさせる重要な時間と考え、ホテル感覚で楽しんでもらえる大きく、ゆったりとしたバスユニットを選んだ。


